




EXECUTIVE
SUMMARY
3. Air Quality
Monitoring Results
5. Summary of
Complaints, Notification of Summons and Prosecutions
8. Conclusion and
Recommendations
List of Appendices
A.
Alignment and Works
Area for the Contract No. HY/2018/02
B.
Construction Programme
C.
Project Organization
Chart
D.
Event-Action Plan (EAP)
(Air Quality Monitoring)
E.
Event-Action Plan (EAP)
(Noise Monitoring)
F.
Environmental
Mitigation Implementation Schedule (EMIS)
G.
Monitoring Schedules of
the Reporting Month
H.
Calibration Certificate
(Air Monitoring)
I.
The Certification of
Laboratory with HOKLAS Accredited Analytical Tests
J.
Location Plan of Air
Quality Monitoring Station
K.
Monitoring Data (Air
Monitoring)
L.
Waste Flow Table
M.
Statistics on
Complaint, Notifications of Summons and Successful Prosecutions
N.
Monitoring Schedule of
the Coming Month
Executive Summary
A.1 Alchmex – Paul Y Joint Venture
(“Contractor”) commenced the construction works of Highway Department (HyD)
Central Kowloon Route Contract No. HY/2018/02 – Section of Kai Tak East (“The
Project”) on 9 September 2019. This report is the 66th monthly
Environmental Monitoring and Audit (EM&A) report presenting the EM&A
works carried out during the period from 1 February 2025 to 28 February 2025.
A.2 A summary of major Construction
activities provided by the Contractor for the Project during the reporting
month is listed below.
|
Construction Activities undertaken |
|
· S1, S2, S3, S4, S7, S8, CKRE, CKRW Bridge Construction · Retaining Wall Construction at S3, U-Turn & Portion 2B · Backfilling at Portion 1A, 2B, 3B |
A.3 A summary of regular construction
dust monitoring activities in this reporting period is listed below:
Construction dust (24-hour TSP)
monitoring
|
E-A1a |
5 times |
Construction dust (1-hour TSP)
monitoring
|
E-A1a |
15 times |
A.4 Joint weekly site inspections were
conducted by representatives of the Environmental team (ET), the Contractor and
the Engineer on 5, 12, 19 and 26 February 2025. A joint site inspection with
the Independent Environmental Checker (IEC) was undertaken on 5 February 2025.
Details of the audit findings and implementation status are presented in
Section 5.
A.5 Bi-weekly inspection of the
implementation of landscape and visual mitigation measures by ET was conducted
on 5 and 19 February 2025. Details of the audit findings and implementation
status are presented in Section 5.
A.6 Details of waste management are
presented in Section 4.
A.7 No exceedance of the Action and
Limit Levels of 24-hour TSP and 1-hour TSP monitoring were recorded during the
reporting month.
A.8 No complaint was received in the
reporting month.
A.9 No non-compliance was received in
the reporting month.
A.10 No notification of summons and prosecution was
received in the reporting period.
A.11 A summary of construction activities provided
by the Contractor in next reporting month is listed below:
|
Construction Activities to be undertaken |
|
· S1, S2, S3, S4, S7, S8, CKRE, CKRW Bridge Construction. · Retaining Wall Construction at S3, U-Turn & Portion 2B. · Backfilling at Portion 1A, 2B, 3B |
Central Kowloon Route (CKR) is a 4.7 km long dual 3-lane trunk road in
Central Kowloon linking Yau Ma Tei Interchange in West Kowloon with the road
network on Kai Tak Development and Kowloon Bay in East Kowloon.
The Central Kowloon Route – Design and Construction Environmental Impact
Assessment Report (Register No.: AEIAR-171/2013) was approved with conditions
by the Environmental Protection Department (EPD) on 11 July 2013. An
Environmental Permit (EP 457/2013) was issued on 9 August 2013. Variations of EP (VEP) was
subsequently applied for and the latest EP (EP-457/2013/D) was issued by EPD on
15 June 2021.
Section of Kai Tak East
i.
construction of an
approximately 700m long dual 2-lane Central Kowloon Route mainline at Kai Tak,
including at-grade roads and bridges;
ii.
construction of Kai Tak
Interchange, including bridges, underpass, and associated at-grade slip roads,
connecting the Central Kowloon Route with the existing road network;
iii.
construction of a
footbridge, and demolition/backfill of an existing subway across Kai Fuk Road;
iv.
realignment of existing
Kai Fuk Road, Kai Cheung Road and Kai Cheung Road/Kai Fuk Road loop road;
v.
reconstruction of an
approximately 30m long existing multi-cell box culvert;
vi.
construction of an
approximately 130m long underground ventilation and E&M audit;
vii.
construction of Ring
Road Underpass, connecting Central Kowloon Route mainline and Central Kowloon
Route Administration Building;
viii.
junction improvement
works at existing Wang Kwong Road/Kai Cheung Road and Wang Kwong Road/Lam Hing
Street junctions;
ix.
arrangement and
implementation of cross boundary disposal of construction and demolition
materials; and
x.
associated roadworks,
drainage, waterworks, landscaping works, geotechnical works, and electrical and
mechanical works.
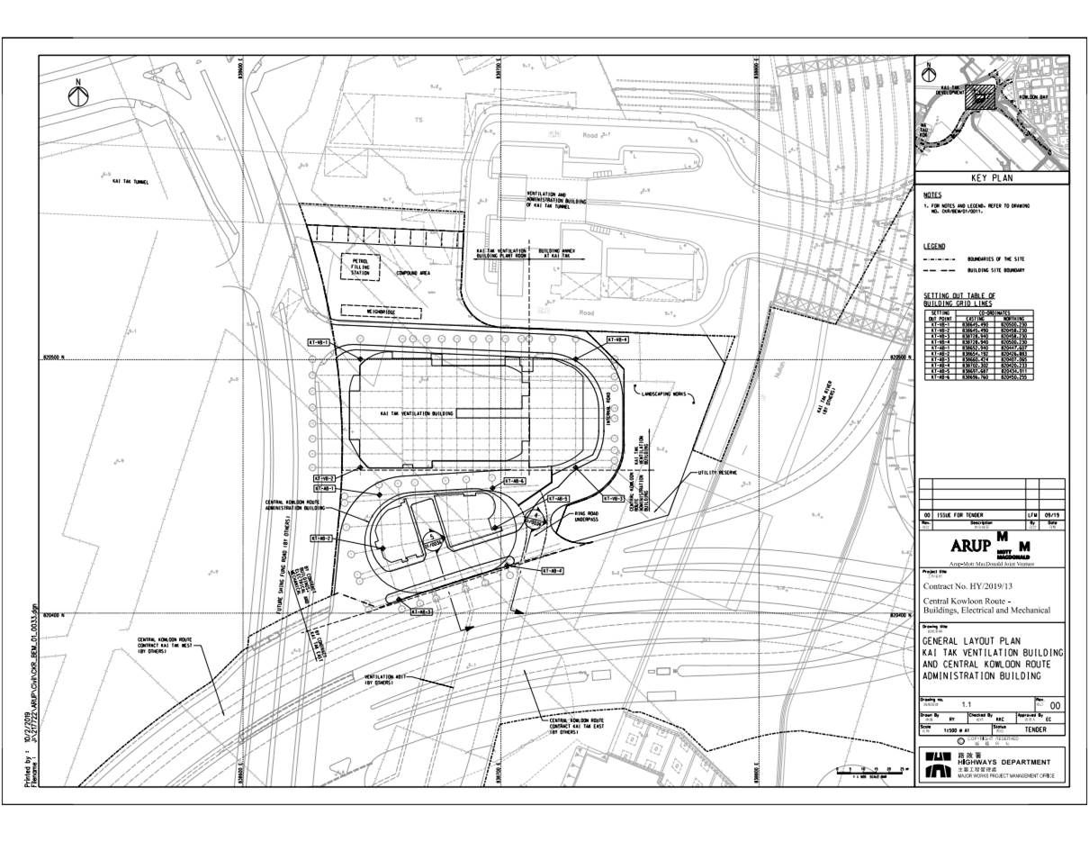
The alignment and works area for the Contract
No. HY/2018/02 - are shown in Appendix A.
A summary of major construction activities provided by the Contractor in
this reporting period is shown in Table 1.1. The construction programme
is presented in Appendix B.
Table
1.1 Summary of Construction Activities during the Reporting Month
|
Construction Activities undertaken |
|
· S1, S2, S3, S4, S7, S8, CKRE, CKRW Bridge Construction · Retaining Wall Construction at S3, U-Turn & Portion 2B · Backfilling at Portion 1A, 2B, 3B |
The project organisational chart
specifying management structure and contact details are shown in Appendix C.
Table 1.2 Summary of the Environmental Licence,
Notification, Permit and Documentations
|
Permit/ Licences/ Notification /Reference No. |
Valid Period |
Status |
Remark |
|
|
From |
To |
|||
|
Environmental Permit |
||||
|
EP-457/2013/D |
15-Jun-21 |
-- |
Valid |
- |
|
Wastewater Discharge License |
||||
|
WT00045689-2024 |
31-Dec-24 |
31-Dec-29 |
Valid |
- |
|
Notification of Construction Works under the Air Pollution Control (Construction Dust) Regulation |
||||
|
445001 |
Apr-19 |
-- |
Notified |
- |
|
Chemical Waste Producer Registration |
||||
|
WPN5113-247-A2940-01 |
17-May-19 |
-- |
Valid |
- |
|
Billing Account for Disposal of Construction Waste |
||||
|
7034073 |
15-Jun-19 |
-- |
Valid |
- |
|
Construction Noise Permit |
||||
|
GW-RE0985-24 |
31-Aug-24 |
28 Feb-25 |
Superseded by GW-RE0140-25 |
Portion 2B |
|
GW-RE1007-24 |
31-Aug-24 |
28 Feb-25 |
Superseded by GW-RE0135-25 |
General Work at Area B and Site Office |
|
GW-RE0980-24 |
31-Aug-24 |
28 Feb-25 |
Superseded by GW-RE0141-25 |
Kai Cheung U Turns |
|
GW-RE0981-24 |
30-Aug-24 |
28 Feb-25 |
Expired during reporting month |
Kai Cheung near Kai Shing Street |
|
GW-RE1192-24 |
7-Oct-24 |
6-Apr-25 |
Valid |
Construction Work at 4A/4C |
|
GW-RE1303-24 |
1-Nov-24 |
30-Apr-25 |
Valid |
General Work at Area A |
|
GW-RE1568-24 |
17-Dec-24 |
15-Mar-25 |
Valid |
Portal installation and demolition at Kai Cheung & Kai Fuk Rd |
|
GW-RE0135-25 |
1-Mar-25 |
31-Aug-25 |
Valid |
General Work at Area B and Site Office |
|
GW-RE0140-25 |
1-Mar-25 |
31-Aug-25 |
Valid |
Portion 2B |
|
GW-RE0141-25 |
1-Mar-25 |
31-Aug-25 |
Valid |
Kai Cheung U Turns |
2
Environmental Status
Environmental permit (EP) conditions under the EIAO, submission status
under the EP and implementation status of mitigation measures had been reviewed
and implemented on schedule. The status of required submissions under the EP (EP-457/2013/D) as of
the reporting period for the Project are summarised in Table 2.1.
Table
2.1 Summary of Status of Required
Submission for EP-457/2013/D for the Project
|
(EP-457/2013/D) |
Submission |
Submission date |
|
Condition 3.4 |
Monthly EM&A Report (January 2025) |
12 February 2025 |
The drawing showing the project layout and the location of the
monitoring station and environmental sensitive receivers are attached in Appendix
A and Appendix J. Co-ordinates of the monitoring locations are shown
in below:
Table
2.2 Summary for the location of
monitoring station
|
Location ID |
Latitude |
Longitude |
Remark |
|
|
Hong Kong International Trade and Exhibition Centre |
E-A1 |
22.323912 |
114.203512 |
No longer available due to redevelopment of the location |
|
Fire Services Department Kowloon Bay Workshop |
E-A1a |
22.324455 |
114.205243 |
Alternative location for air quality monitoring station since 25 March 2024 |
3
Air Quality Monitoring Results
The impact monitoring had been carried out in accordance with section
5.8 of the approved EM&A Manual to determine the 1-hour and 24-hour total
suspended particulates (TSP) levels at the monitoring locations in the
reporting month.
The sampling frequency of at least once in every 6 days, shall be
strictly observed at the monitoring stations for 24-hour TSP monitoring. For
1-hour TSP monitoring, the sampling frequency of at least 3 times in every 6
days should be undertaken when the highest dust impact occurs.
General meteorological conditions (wind speed, direction and
precipitation) and notes regarding any significant adjacent dust producing
sources had also been recorded throughout the impact monitoring period.
1-hour TSP levels and 24-hour TSP had been measured with direct reading
dust meter and High-Volume Samplers respectively. It has been demonstrated its
capability in achieving comparable results with high volume sampling method as
set out in the Title 40 of the Code of Federal Regulations, Chapter 1 (Part
50).
The 1-hour TSP meter was calibrated by the manufacturer prior to
purchasing. Zero response of the instrument was checked before and after each
monitoring event. Operation of the 1-hour TSP meter followed manufacturer’s
Operation and Service Manual. The 24-hour TSP meter was calibrated against
firmware 80570-8100-V1.0.4, annually. Operation of the 24-hour TSP meter
followed manufacturer’s Operation and Service Manual. Valid calibration
certificate of dust monitoring equipment is attached in Appendix H.
A summary of the equipment that was deployed for the 24- hour averaged
monitoring is shown in Table 3.1. The TSP monitoring was conducted as
per the schedule presented in Appendix G.
The equipment used for 1-hour TSP and 24-hour TSP measurement and
calibration are summarised in Table 3.1.
Table 3.1 Construction Dust
Monitoring Equipment
|
Monitoring Parameter |
Monitoring Equipment |
Serial Number |
Date of Calibration |
|
1-hour TSP |
LD-5R Digital Dust Indicator |
467356 |
17 August 2024 |
|
24-hour TSP |
TE-5170X High Volume Sampler |
1049 |
2 February 2025 |
|
17 February 2025 |
|||
|
TE-5028A Calibration Kit |
3465 |
2 December 2024 |
Monitoring Methodology and QA/QC
results
The 1-hour TSP monitor, portable dust meters (Sibata Digital Dust
Indicator Model LD-5R) was used for the impact monitoring. The 1-hour TSP
meters provides a real time 1-hour TSP measurement based on 90o
light scattering. Three 1-hour TSP level were logged per every six days.
The 24-hour TSP monitor, High Volume Samplers (Tisch TE-5170x High
Volume Air Sampler) were used for the impact monitoring. The 24-hour TSP
monitoring consists of the following:
u The HVS was set at
the monitoring location, with electricity supply connected and secured;
u HVS was calibrated
before commencing the 1st measurement;
u The filter paper was
weight and provided by HOKLAS lab (Acumen Laboratory and Testing Limited and
ALS Technichem (HK) Pty Ltd) before and after the sampling. Certificate of
HOKLAS accredited laboratory can be referred to Appendix I;
u The airflow over
time during sampling process was recorded by the HVS.
HVSs were free-standing with no obstruction. The following criteria were
considered in the installation of the HVS:
u Appropriate
support to secure the samples against gusty wind needed to be provided the
monitoring station;
u A minimum of 2m
separation from walls, parapets and penthouses was required for rooftop
samplers;
u No furnace or
incinerator flues was nearby;
u Airflow around the
sampler was unrestricted; and
u Permission could
be obtained to set up the samplers and gain access to the monitoring station.
u Any wire fence and
gate, to protect the sampler, should not cause any obstruction during
monitoring
u A secured supply of
electricity is needed to operate the samplers.
u Glass fiber
filters were labelled and sufficient filters that were clean and without
pinholes were selected;
u All filters were
equilibrated in the conditioning environment for 24 hours before weighing. The
conditioning environment temperature was around 25℃ and not varied by
more than ±3℃; the relative humidity (RH)was 40%; and
u Acumen Laboratory
and Testing Limited and ALS Technichem (HK) Pty Limited, as HOKLAS accredited
laboratory, implemented comprehensive quality assurance and quality control
programmes on the filters.
u The power supply
was checked to ensure that the HVS was working properly;
u The filter holder
and area surrounding the filter were cleaned;
u The filter holder
was removed by loosening the foul bolts and a new filter, with stamped number
upward, on a supporting screen was aligned carefully;
u The filter was
properly aligned on the screen so that the gasket formed an airtight seal on
the outer edges of the filter;
u The swing bolts
were fastened to hold the filter holder down to the frame. The pressure applied
should be sufficient to avoid air leakage at the edges;
u The shelter lid was
closed and secured with an aluminum strip;
u The HVS was
warmed- up for about 5 minutes to establish run- temperature conditions;
u A new flow rate
record sheet was inserted into the flow recorder;
u The flow rates of
the HVS was checked and adjusted to between 1.13-1.19 m3min-1, which was within
the range specified in the EM&A Manual (i.e. 0.6- 1.7 m3min-1);
u The programmable
timer was set for a sampling period of 24 hours ±hour, and the starting time,
weather condition and filter number were recorded;
u The initial
elapsed time was recorded;
u At the end of
sampling, the sampled filter was removed carefully and folded in half so that
only surfaces with collected particulate matter were in contact;
u The filter paper
was placed in a clean plastic envelope and sealed; all monitoring information
was recorded on a standard data sheet and
u The filters were
sent to (Acumen Laboratory and Testing Ltd) for analysis.
u The HVS and their
accessories were maintained in a good working condition. For example, motor
brushes were replaced routinely and electrical wiring was checked to ensure a
continuous power supply; and
u The flow rate of
each HVS with mass flow controller was calibrated using an orifice calibrator,
Initial calibrations of the dust monitoring equipment were conducted upon
installation and prior to commissioning. Five-point calibration was carried out
for HVS using TE-5025A Calibration Kit and TE-5028A Calibration KIT. HVS is
calibrated in fortnightly Intervals. The calibration records for the HVS is
given in Appendix H.
u The wind speed has
been recorded from Hong Kong Observatory- King’s Park meteorological station,
along with portable wind speed meter stand by as back up if malfunction
occurred or data was not recorded from HKO.
Table
3.2 Location of the Air Quality
Monitoring Station
|
Monitoring Station |
Monitoring Location |
Remark |
|
E-A1 |
Hong Kong International Trade and Exhibition Centre |
No longer available due to redevelopment of the location |
|
E-A1a |
Alternative location for air quality monitoring station since 25 March 2024 |
Monitoring Date, Time, Frequency and Duration
A summary of impact monitoring duration, sampling parameter and
frequency is presented in Table 3.3.
Table
3.3 Summary of Impact
Monitoring Programme
|
Impact Monitoring |
Duration |
Parameter |
Frequency |
|
Dust |
1-hour continuous measurement |
1-hour TSP |
3 times per six days |
|
Dust |
24-hour continuous sampling |
24-hour TSP |
Once per six days |
Result Summary
According to our field observations, the major dust source identified at
the designated air quality monitoring station in the reporting month are
summarised in Table 3.4.
Table
3.4 Observation at Air Quality
Monitoring Station
|
Monitoring Station |
Major Dust Source |
|
E-A1a |
Nearby traffic |
Air quality impact monitoring for the reporting month was scheduled at
E-A1a on 4, 7, 13, 19 and 25 February 2025.
The results for 1-hour TSP and
24-hour TSP are summarized in Table 3.5 and Table 3.6. The
measurement data and details of influencing factors such as weather conditions
and site observation are presented in Appendix K.
Table
3.5 Summary of 1-hour TSP
Monitoring Results
|
Monitoring Location |
Range (μg/m3) |
Action Level(μg/m3) |
Limit Level(μg/m3) |
|
E-A1a |
43 – 58 |
279 |
500 |
Table
3.6 Summary of 24-hour TSP
Monitoring Results
|
Monitoring Location |
Range (μg/m3) |
Action Level (μg/m3) |
Limit Level (μg/m3) |
|
E-A1a |
16 – 32 |
142 |
260 |
The waste generated from this Project includes inert C&D materials,
and non-inert C&D materials. Non-inert C&D materials are made up of
general refuse, vegetative wastes and recyclable wastes such as plastics and
paper/cardboard packaging waste. Steel materials generated from the project are
also grouped into non-inert C&D materials as the materials were not
disposed of with other inert C&D materials. With reference to relevant
handling records and trip tickets of this Project, the quantities of different
types of waste generated in the reporting month are summarised in Table 4.1.
Details of cumulative waste management data are presented as a waste flow table
in Appendix L.
Table
4.1 Quantities of Waste Generated
from the Project
|
Reporting period |
Quantity |
|||||
|
Inert C&D Materials (in ‘000tonnes) |
Chemical Waste (in ‘kg) |
Non-inert C&D Materials |
||||
|
Others, e.g. General Refuse disposed at Landfill (in ‘kg) |
Recycled materials |
|||||
|
Paper/ cardboard (in ‘kg) |
Plastics (in ‘000 kg) |
Metals (in ‘000 kg) |
||||
|
Feb 2025 |
0.00 |
0.00 |
295790.00 |
0.00 |
0.00 |
0.00 |
5
Summary of Complaints, Notification of Summons and
Prosecutions
The Environmental Complaint Handling Procedure is shown in below Table
5.1.
Table
5.1 Environmental Complaint Handling
Procedure
|
Complaint Received via Project Hotline |
Complaint Received via 1823 or from other government departments |
||||
|
|
|
|
|
||
|
Contractor notify ER, ET and IEC |
ER notify Contractor, ET and IEC |
||||
|
|
|
|
|
||
|
Contractor log complaint and date of receipt onto the complaint database. Contractor, ER and ET to conduct investigation of complaint |
|||||
|
|
|
|
|
||
|
If complaint is considered not valid |
If complaint is found valid |
||||
|
|
|
|
|
||
|
ET or ER to reply the complainant if necessary |
Contractor to identify and implement remedial measures in consultation with the IEC, ET and ER. |
||||
|
|
|
|
|
||
|
|
|
The ER, ET and IEC to review the effectiveness of the Contractor’s remedial measures and the updated situation; ET to undertake additional monitoring and audit to verify the situation if necessary and oversee that circumstances leading to the complaint do not recur. ER to conduct further inspection as necessary. |
|||
|
|
|
|
|
||
|
If the complaint is referred by the EPD, the Contractor to prepare interim report on the status of the complaint investigation and follow-up actions stipulated above, including the details of the remedial measures and additional monitoring identified or already taken, for submission to EPD within the time frame assigned by the EPD |
|||||
|
|
|
|
|||
|
The ET to record the details of the complaint, results of the investigation, subsequent actions taken to address the complaint and updated situation including the effectiveness of the remedial measures, supported by regular and additional monitoring results in the monthly EM&A reports |
|||||
Should non-compliance of the criteria occur,
action in accordance with the Event and Action Plan in Appendix D and Appendix
E shall be carried out.
No exceedance of the Action and Limit Levels of
24-hour TSP and 1-hour TSP monitoring was recorded in the reporting month.
No complaint was received in the reporting
month.
No non-compliance was received in the reporting
month.
No notification of summons and successful
prosecution was received in the reporting month.
Statistics on complaints, notifications of
summons and successful prosecutions are summarized in Appendix M.
6
EM&A Site Inspection
Site inspections were carried out on a weekly basis to monitor the implementation
of proper environmental pollution control and mitigation measures under the
Contract. In the reporting period, 4 site inspections were carried out by the
representative of ET, Contractor and Engineer on 5, 12, 19 and 26 February
2025, along with bi-weekly inspection of the implementation of landscape and
visual mitigation measures conducted on 5 and 19 February 2025.
One joint site inspection with IEC was also undertaken on 5 February
2025. Minor deficiencies were observed during weekly site inspection. Key
observations during the site inspections are summarized in Table 6.1.
Table
6.1 Site Observations
|
Date |
Environmental Observations |
Follow-up Status |
|
5 February 2025 |
1. At CKRW, stockpile of dusty materials should be covered or removed. 2. Near S3 underpass, roads should be sprayed with water and wetted. |
1. Open stockpiles were removed. 2. Regular watering for exposed roads were enhanced. |
|
12 February 2025 |
1. Near 2B, stockpile of dusty materials/dirt should be covered and prevented from leaving site premises. 2. At U-turn, ensure measures in place to prevent sand/dirt from leaving site premises. |
1. Open stockpile have been properly covered. 2. Sandbags was provided to prevent silty water runoff. |
|
19 February 2025 |
1. At 4A, stockpile of dusty materials should be covered. 2. At U-turn, PME breaker had should be placed on an imperious surface. |
1. Open stockpile have been properly covered. 2. Breaker was wrapped by tarpaulin sheet. |
|
26 February 2025 |
1. At 2B near U-turn, shoe washing station should be provided to prevent dirt from leaving the site premise. |
1. Shoe washing station was provided.
|
The Contractor had rectified all observation identified during
environmental site inspection in the reporting period.
According to the EIA Study Report,
Environmental Permit, contract documents and EM&A Manual, the mitigation
measures detailed in the documents had been implemented as much as practical
during the reporting period. An updated Implementation Status of Environmental
Mitigation Measures (EMIS) is provided in Appendix F.
7
Future Key Issues
The construction activities to be undertaken in
the next reporting month are:
|
Construction Activities to be undertaken |
|
· S1, S2, S3, S4, S7, S8, CKRE, CKRW Bridge Construction. · Retaining Wall Construction at S3, U-Turn & Portion 2B. · Backfilling at Portion 1A, 2B, 3B |
Potential environmental impacts arising from
the above construction activities are mainly associated with dust and waste
management.
The tentative schedule of 1-hour TSP and 24-hour TSP monitoring in the
next reporting period is presented in Appendix N.
The construction programme for the Project for the next reporting month
is presented in Appendix B.
8
Conclusion
and Recommendations
This 66th monthly EM&A Report presents the EM&A works
undertaken during the period from 1 February 2025 to 28 February 2025 in
accordance with the EM&A Manual and the requirement under EP-457/2013/C and EP-457/2013/D.
Air quality impact monitoring (including 1-hour TSP and 24-hour TSP) was
carried out in the reporting period. No exceedance of the Action and Limit
Level was recorded for air quality impact monitoring during the reporting
month.
Weekly environmental site
inspections by the representative of ET, Contractor and Engineer were conducted
during the reporting period. One joint site inspection with IEC was carried out
on 5 February 2025. Minor deficiency was observed during site inspection and
was rectified within the specified deadlines. The environmental performance of
the Project was therefore considered satisfactory.
No complaint was received in the
reporting month.
No non-compliance situation was
received in the reporting month.
No notification of summons or
prosecution was received since commencement of the Contract.
The ET will keep track on the construction works to confirm compliance
of environmental requirements and the proper implementation of all necessary
mitigation measures.
Appendix A
Alignment and Works Area for
the Contract No. HY/2018/02

Appendix B
Construction Programme













Appendix C
Project Organization Chart
Appendix D
Dust Event-Action Plan (EAP)
(Air Quality Monitoring)
EVENT |
ACTION |
|||
|
ET |
IEC |
ER |
CONTRACTOR |
|
|
ACTION LEVEL |
||||
|
Exceedance for one sample |
1. Identify source, investigate the causes of exceedance and propose remedial measures; 2. Inform IEC and ER; 3.Repeat measurement to confirm finding; 4. Increase monitoring frequency to daily. |
1.Check monitoring data submitted by ET; 2.Check Contractor’s working method. |
1. Notify Contractor. |
1.Rectify any unacceptable practice; 2.Amend working methods if appropriate. |
|
Exceedance for two or more consecutive samples |
1. Identify source; 2. Inform IEC and ER; 3.Advise the ER on the effectiveness of the proposed remedial measures; 4.Repeat measurements to confirm findings; 5. Increase monitoring frequency to daily; 6.Discuss with IEC and Contractor on remedial actions required; 7.If exceedance continues, arrange meeting with IEC and ER; 8.If exceedance stops, cease additional monitoring. |
1.Check monitoring data submitted by ET; 2.Check Contractor’s working method; 3. Discuss with ET and Contractor on possible remedial measures; 4.Advise the ET on the effectiveness of the proposed remedial measures; 5.Supervise Implementation of remedial measures. |
1.Confirm receipt of notification of failure in writing; 2. Notify Contractor; 3.Ensure remedial measures properly implemented.
|
1.Submit proposals for remedial to ER within 3 working days of notification; 2.Implement the agreed proposals; 3.Amend proposal if appropriate. |
|
LIMIT LEVEL |
||||
|
Exceedance for one sample |
1. Identify source, investigate the causes of exceedance and propose remedial measures; 2. Inform ER, Contractor and EPD; 3.Repeat measurement to confirm finding; 4. Increase monitoring frequency to daily; 5.Assess effectiveness of Contractor’s remedial actions and keep IEC, EPD and ER informed of the results. |
1.Check monitoring data submitted by ET; 2.Check Contractor’s working method; 3. Discuss with ET and Contractor on possible remedial measures; 4.Advise the ER on the effectiveness of the proposed remedial measures; 5.Supervise implementation of remedial measures. |
1.Confirm receipt of notification of failure in writing; 2. Notify Contractor; 3.Ensure remedial measures properly implemented. |
1.Take immediate action to avoid further exceedance; 2.Submit proposals for remedial actions to IEC within 3 working days of notification; Implement the agreed proposals; 4.Amend proposal if appropriate. |
|
Exceedance for two or more consecutive samples |
1.Notify IEC, ER, Contractor and EPD; 2. Identify source; 3.Repeat measurement to confirm findings; 4. Increase monitoring frequency to daily; 5.Carry out analysis of Contractor’s working procedures to determine possible mitigation to be implemented; 6. Arrange meeting with IEC and ER to discuss the remedial actions to be taken; 7.Assess effectiveness of Contractor’s remedial actions and keep IEC, EPD and ER informed of the results; 8. If exceedance stops, cease additional monitoring. |
1.Discuss amongst ER, ET, and Contractor on the potential remedial actions; 2.Review Contractor’s remedial actions whenever necessary to assure their effectiveness and advise the ER accordingly; 3.Supervise the implementation of remedial measures. |
1.Confirm receipt of notification of failure in writing; 2. Notify Contractor; 3. In consultation with the IEC, agree with the Contractor on the remedial measures to be implemented; 4.Ensure remedial measures properly implemented; 5.If exceedance continues, consider what portion of the work is responsible and instruct the Contractor to stop that portion of work until the exceedance is abated. |
1.Take immediate action to avoid further exceedance; 2.Submit proposals for remedial actions to IEC within 3 working days of notification; 3.Implement the agreed proposals; 4.Resubmit proposals if problem still not under control; 5.Stop the relevant portion of works as determined by the ER until the exceedance is abated. |
Note:
ET – Environmental
Team
ER – Engineer’s
Representative
IEC – Independent Environmental Checker
Appendix E
Noise Event-Action Plan (EAP)
(Noise Monitoring)
EVENT |
ACTION |
|||
|
ET |
IEC |
ER |
CONTRACTOR |
|
|
Action Level |
1. Identify source, investigate the causes of exceedance and propose remedial measures; 2. Notify IEC and Contractor; 3.Report the results of investigation to the IEC, ER and Contractor; 4. Discuss with the Contractor and formulate remedial measures; 5. Increase monitoring frequency to check mitigation effectiveness. |
1.Review the analysed results submitted by the ET; 2.Review the proposed remedial measures by the Contractor and advise the ER accordingly; 3. Supervise the implementation of remedial measures. |
1.Confirm receipt of notification of failure in writing; 2. Notify Contractor; 3.Require Contractor to propose remedial measures for the analysed noise problem; 4. Ensure remedial measures are properly implemented |
1.Submit noise mitigation proposals to IEC; 2.Implement noise mitigation proposals. |
Note:
ET – Environmental
Team
IEC – Independent
Environmental Checker
ER – Engineer’s
Representative
Appendix F
Environmental Mitigation Implementation Schedule (EMIS)
Environmental
Mitigation Implementation Schedule – Contract No.: HY/2018/02 (Kai Tak East)
|
EIA Ref. |
EM&A Log Ref. |
Recommended Mitigation Measures |
Objectives of the Recommended Measures & Main Concerns to address |
Implementation Agent |
Location / Timing |
Implementation Stage |
Requirements and/ or standards to be achieved |
Implementation Status |
|
|
Construction Dust Impact |
|||||||||
|
S4.3.10 |
D1 |
The contractor shall follow the procedures and requirements given in the Air Pollution Control (Construction Dust) Regulation and Air Pollution Control (Non-road Mobile Machinery) (Emission) Regulation. |
Minimize dust impact and adverse health effects at the nearby sensitive receivers |
Contractor |
All construction sites |
Construction stage |
· APCO · To control the dust impact to meet HKAQO and TM-EIA criteria |
Implemented |
|
|
S4.3.10 |
D2 |
· Mitigation measures in form of regular watering under a good site practice should be adopted. Watering once per hour on exposed worksites and haul road should be conducted to achieve dust removal efficiencies of 91.7%. While the above watering frequencies are to be followed, the extent of watering may vary depending on actual site conditions but should be sufficient to maintain an equivalent intensity of no less than 1.3 L/m2 to achieve the dust removal efficiency. |
Minimize dust impact at the nearby sensitive receivers |
Contractor |
All construction sites |
Construction stage |
· APCO · To control the dust impact to meet HKAQO and TM-EIA criteria |
Implemented |
|
|
xS4.3.10 |
D3 |
·
Proper watering at exposed spoil should be undertaken throughout the
construction phase; · Any excavated or stockpile of dusty material should be covered entirely by impervious sheeting or sprayed with water to maintain the entire surface wet and then removed or backfilled or reinstated where practicable within 24 hours of the excavation or unloading; · Any dusty materials remaining after a stockpile is removed should be wetted with water and cleared from the surface of roads; ·
A stockpile of dusty material should not be extended beyond the
pedestrian barriers, fencing or traffic cones; · The load of dusty materials on a vehicle leaving a construction site should be covered entirely by impervious sheeting to ensure that the dusty materials do not leak from the vehicle. ·
Where practicable, vehicle washing facilities with high pressure water
jet should be provided at every discernible or designated vehicle exit
point. The area where vehicle washing takes place and the road section
between the washing facilities and the exit point should be paved with
concrete, bituminous materials or hardcores; · When there are open excavation and reinstatement works, hoarding of not less than 2.4m high should be provided and properly maintained as far as practicable along the site boundary with provision for public crossing. Good site practice shall also be adopted by the Contractor to ensure the conditions of the hoardings are properly maintained throughout the construction period; · The portion of any road leading only to construction site that is within 30m of a vehicle entrance or exit should be kept clear of dusty materials; · Surfaces where any pneumatic or power-driven drilling, cutting, polishing or other mechanical breaking operation takes place should be sprayed with water or a dust suppression chemical continuously; · Any area that involves demolition activities should be sprayed with water or a dust suppression chemical immediately prior to, during and immediately after the activities so as to maintain the entire surface wet; · Any skip hoist for material transport should be totally enclosed by impervious sheeting; · Every stock of more than 20 bags of cement or dry-pulverised fuel ash (PFA) should be covered entirely by impervious sheeting or placed in an area sheltered on the top and the 3 sides; · Loading, unloading, transfer, handling or storage of bulk cement or dry PFA should be carried out in a totally enclosed system or facility, and any vent or exhaust should be fitted with an effective fabric filter or equivalent air pollution control system · Exposed earth should be properly treated by compaction, turfing, hydroseeding, vegetation planting or sealing with latex, vinyl, bitumen, shotcrete or other suitable surface stabilizer within six months after the last construction activity on the construction site or part of the construction site where the exposed earth lies. |
Minimize dust impact at the nearby sensitive receivers |
Contractor |
All construction sites |
Construction stage |
· APCO · To control the dust impact to meet HKAQO and TM-EIA criteria |
Implemented after observation |
|
|
S4.3.10 |
D6 |
Implement regular dust monitoring under EM&A programme during the construction stage. |
Monitoring of dust impact |
Contractor |
Selected rep. dust monitoring station |
Construction stage |
· TM-EIA |
Implemented |
|
|
Construction Noise (Airborne) |
|||||||||
|
S5.4.1 |
N1 |
Implement the following good site practices: · Only well-maintained plant should be operated on-site, and plant should be serviced regularly during the construction programme; · Machines and plant (such as trucks, cranes) that may be in intermittent use should be shut down between work periods or should be throttled down to a minimum; · Plant known to emit noise strongly in one direction, where possible, be orientated so that the noise is directed away from nearby NSRs; · Silencers or mufflers on construction equipment should be properly fitted and maintained during the construction works; · Mobile plant should be sited as far away from NSRs as possible and practicable; · Material stockpiles, mobile container site office and other structures should be effectively utilized, where practicable, to screen noise from on-site construction activities. |
Control construction airborne noise |
Contractor |
All construction sites |
Construction stage |
· Annex 5, TM-EIAO |
Implemented after reminder |
|
|
S5.4.1 |
N2 |
Install temporary hoarding located on the site boundaries between noisy construction activities and NSRs. The conditions of hoardings shall be properly maintained throughout the construction period. |
Reduce the construction noise levels at low-level zone of NSRs through partial screening |
Contractor |
All construction sites |
Construction stage |
· Annex 5, TM-EIAO |
Implemented |
|
|
S5.4.1 |
N3 |
Install movable noise barriers (typical design is wooden framed barrier with a small-cantilevered on a skid footing with 25mm thick internal sound absorptive lining), acoustic mat or full enclosure, screen the noisy plants including air compressors, generators and handheld breakers, etc. |
Sreen the noisy plant items to be used at all construction sites |
Contractor |
All construction sites where practicable |
Construction stage |
· Annex 5, TM-EIAO |
Implemented |
|
|
S5.4.1 |
N4 |
Use ‘Quiet plant’ |
Reduce the noise levels of plant items |
Contractor |
All construction sites where practicable |
Construction stage |
· Annex 5, TM-EIAO |
Implemented |
|
|
S5.4.1 |
N5 |
Loading/ unloading activities should be carried out inside the full enclosure of mucking out points. |
Reduce the noise levels of loading/ unloading activities |
Contractor |
Mucking out locations |
Construction stage |
· Annex 5, TM-EIAO |
Implemented |
|
|
S5.4.1 |
N6 |
Sequencing operation of construction plants where practicable. |
Operate sequentially within the same work site to reduce the construction airborne noise |
Contractor |
All construction sites where practicable |
Construction stage |
· Annex 5, TM-EIAO |
Implemented |
|
|
S5.4.1 |
N7 |
Implement a noise monitoring programme under EM&A programme. |
Monitor the construction noise levels at the selected representative locations |
Contractor |
Selected rep. noise monitoring station |
Construction stage |
· TM-EIAO |
Implemented |
|
|
Water Quality (Construction Phase) |
|||||||||
|
S6.9.1.1 |
W1 |
In accordance with the Practice Note for Professional Persons on Construction Site Drainage, Environmental Protection Department, 1994 (ProPECC PN1/94), construction phase mitigation measures shall include the following:
Construction Runoff · At the start of site establishment, perimeter cut-off drains to direct off-site water around the site should be constructed with internal drainage works and erosion and sedimentation control facilities implemented. Channels (both temporary and permanent drainage pipes and culverts), earth bunds or sandbag barriers should be provided on site to direct stormwater to silt removal facilities. The design of the temporary on-site drainage system will be undertaken by the contractor prior to the commencement of construction; · The dikes or embankments for flood protection should be implemented around the boundaries of earthwork areas. Temporary ditches should be provided to facilitate the runoff discharge into an appropriate watercourse, through a silt/ sediment trap. The sediment/ silt traps should be incorporated in the permanent drainage channels to enhance deposition rates; · The design of efficient silt removal facilities should be based on the guidelines in Appendix A1 of ProPECC PN 1/94, which states that the retention time for silt/ sand traps should be 5 minutes under maximum flow conditions. Sizes may vary depending upon the flow rate, but for a flow rate of 0.1 m3/s a sedimentation basin of 30 m3 would be required and for a flow rate of 0.5 m3/s the basin would be 150 m3. The detailed design of the sand/ silt traps shall be undertaken by the contractor prior to the commencement of construction; · All exposed earth areas should be completed and vegetated as soon as possible after earthworks have been completed, or alternatively, within 14 days of the cessation of earthworks where practicable. Exposed slope surfaces should be covered by tarpaulin or other means; · The overall slope of the site should be kept to a minimum to reduce the erosive potential of surface water flows, and all traffic areas and access roads protected by coarse stone ballast. An additional advantage accruing from the use of crushed stone is the positive traction gained during prolonged periods of inclement weather and the reduction of surface sheet flows; · All drainage facilities and erosion and sediment control structures should be regularly inspected and maintained to ensure proper and efficient operation at all times and particularly following rainstorms. Deposited silt and grit should be removed regularly and disposed of by spreading evenly over stable, vegetated areas; · Measures should be taken to minimize the ingress of site drainage into excavations. If the excavation of trenches in wet periods is necessary, they should be dug and backfilled in short sections wherever practicable. Water pumped out from trenches or foundation excavations should be discharged into storm drains via silt removal facilities; · Open stockpiles of construction materials (for example, aggregates, sand and fill material) of more than 50m3 should be covered with tarpaulin or similar fabric during rainstorms. Measures should be taken to prevent the washing away of construction materials, soil, silt or debris into any drainage system; · Manholes should always be adequately covered and temporarily sealed so as to prevent silt, construction materials or debris being washed into the drainage system and storm runoff being directed into foul sewers; · Precautions be taken at any time of year when rainstorms are likely, actions to be taken when a rainstorm is imminent or forecasted, and actions to be taken during or after rainstorms are summarized in Appendix A2 of ProPECC PN 1/94. Particular attention should be paid to the control of silty surface runoff during storm events, especially for areas located near steep slopes; · All vehicles and plant should be cleaned before leaving a construction site to ensure no earth, mud, debris and the like is deposited by them on roads. An adequately designed and site wheel washing facilities should be provided at every construction site exit where practicable. Wash-water should have sand and silt settled out and removed at least on a weekly basis to ensure the continued efficiency of the process. The section of access road leading to, and exiting from, the wheel wash bay to the public road should be paved with sufficient backfall toward the wheel wash bay to prevent vehicle tracking of soil and silty water to public roads and drains; · Oil interceptors should be provided in the drainage system downstream of any oil/ fuel pollution sources. The oil interceptors should be emptied and cleaned regularly to prevent the release of oil and grease into the storm water drainage system after accidental spillage. A bypass should be provided for the oil interceptors to prevent flushing during heavy rain; · Construction solid waste, debris and rubbish on site should be collected, handled and disposed of properly to avoid water quality impacts; · All fuel tanks and storage areas should be provided with locks and sited on sealed areas, within bunds of a capacity equal to 110% of the storage capacity of the largest tank to prevent spilled fuel oils from reaching water sensitive receivers nearby; · Adopt best management practices; · All earth works should be conducted sequentially to limit the amount of construction runoff generated from exposed areas during the wet season (April to September) as far as practicable. |
To minimize water quality impact from the construction site runoff and general construction activities |
Contractor |
All construction sites where practicable |
Construction stage |
· Water Pollution Control Ordinance · ProPECC PN 1/94 · TM-EIAO · TM-DSS |
Implemented after observation |
|
|
S6.9.1.2 |
W2 |
Tunneling Works and Underground Works
· Cut-&-cover tunneling work should be conducted sequentially to limit the amount of construction runoff generated from exposed areas during the wet season (April to September) as far as practicable. · Uncontaminated discharge should pass through sedimentation tanks prior to off-site discharge; · The wastewater with a high concentration of SS should be treated (e.g. by sedimentation tanks with sufficient retention time) before discharge. Oil interceptors would also be required to remove the oil, lubricants and grease from the wastewater; · Direct discharge of the bentonite slurry (as a result of D-wall) is not allowed. It should be reconditioned and reused wherever practicable. Temporary storage locations (typically a properly closed warehouse) should be provided on site for any unused bentonite that needs to be transported away after all the related construction activities area completed. The requirements in ProPECC PN 1/94 should be adhered to in the handling and disposal of bentonite slurries. |
To minimize construction water quality impact from tunneling works |
Contractor |
All tunneling portion |
Construction stage |
· Water Pollution Control Ordinance · ProPECC PN 1/94 · TM-DSS · TM-EIAO |
N/A |
|
|
S6.9.1.3 |
W3 |
Sewage Effluent
· Portable chemical toilets and sewage holding tanks are recommended for handling the construction sewage generated by the workforce. A licensed contractor should be employed to provide appropriate and adequate portable toilets and be responsible for appropriate disposal and maintenance. |
To minimize water quality from sewage effluent |
Contractor |
All construction sites where practicable |
Construction stage |
· Water Pollution Control Ordinance · TM-DSS |
Implemented |
|
|
S6.9.1.5 |
W4 |
Groundwater from Potential Contaminated Area:
· No direct discharge of groundwater from contaminated areas should be adopted. · A discharge license under the WPCO through the Regional Office of EPD for groundwater discharge should be applied. Prior to the excavation works within these potentially contaminated areas, the groundwater quality should be reviewed during the process of discharge license application. The compliance to the Technical Memorandum on Standards for Effluents Discharged into Drainage on Sewerage Systems, Inland and Coastal Waters (TM-DSS) and the existence of prohibited substance should be confirmed. If the review results indicated that the groundwater to be generated from the excavation works would be contaminated, the contaminated groundwater should be either properly treated in compliance with the requirements of the TM-DSS or properly recharged into the ground. · If wastewater treatment is deployed, the wastewater treatment unit shall deploy suitable treatment process (e.g. oil interceptor / activated carbon) to reduce the pollution level to an acceptable standard and remove any prohibited substances (e.g. TPH) to undetectable range. All treated effluent from wastewater treatment plant shall meet the requirements as stated in TM-DSS and should be discharged into the foul sewers. · If groundwater recharging wells are deployed, recharging wells should be installed as appropriate for recharging the contaminated groundwater back into the ground. The recharging wells should be selected at places where the groundwater quality will not be affected by the recharge operation as indicated in the Section 2.3 of TM-DSS. The baseline groundwater quality shall be determined prior to the selection of the recharge wells, and submit a working plan (including the laboratory analytical results showing the quality of groundwater at the proposed recharge location(s) as well as the pollutant levels of groundwater to be recharged) to EPD for agreement. Pollution levels of groundwater to be recharged shall not be higher than pollutant levels of ambient groundwater at the recharge well. Prior to recharge, any prohibited substances such as TPH products should be removed as necessary by installing the petrol interceptor. |
To minimize groundwater quality impact from contaminated area |
Contractor |
Excavation areas where contamination is found |
Construction stage |
· Water Pollution Control Ordinance · TM-DSS · TM-EIAO |
Implemented |
|
|
S6.9.1.6 |
W6 |
Accidental Spillage
In order to prevent accidental spillage of chemicals, the following is recommended: · All the tanks, containers, storage area should be bunded and the locations should be locked as far as possible from the sensitive watercourse and stormwater drains; · The Contractor should register as a chemical waste producer if chemical wastes would be generated. Storage of chemical waste arising from the construction activities should be stored with suitable labels and warnings. Disposal of chemical wastes should be conducted in compliance with the requirements as stated in the Waste Disposal (Chemical Waste) (General) Regulation. |
To minimize water quality impact from accidental spillage |
Contractor |
All construction site where practicable |
Construction stage |
· Water Pollution Control Ordinance · ProPECC PN 1/94 · TM-EIAO · TM-DSS |
Implemented |
|
|
Waste Management (Construction Waste) |
|||||||||
|
S7.4.1 |
WM1 |
On-site sorting of C&D material
· Geological assessment should be carried out by competent persons on site during excavation to identify materials which are not suitable to use as aggregate in structural concrete (e.g. volcanic rock, Aplite dyke rock, etc.). Volcanic rock and Aplite dyke rock should be separated at the source sites as far as practicable and stored at designated stockpile area preventing them from delivering to crushing facilities. The crushing plant operator should also be reminded to set up measures to prevent unsuitable rock from ending up at concrete batching plants and be turned into concrete for structural use. Details regarding control measures at source site and crushing facilities should be submitted by the Contractor for the Engineer to review and agree. In addition, site records should also be kept for the types of rock materials excavated and the traceability of delivery will be ensured with the implementation of Trip Ticket System and enforced by site supervisory staff as stipulated under DEVB TC(W) No. 6/2010 for tracking of the correct delivery to the rock crushing facilities for processing into aggregates. Alternative disposal option for the reuse of volcanic rock and Aplite Dyke rock, etc. should be explored. |
Separation of unsuitable rock from ending up at concrete batching plants and be turned into concrete for structural use |
Contractor |
All construction sites |
Construction stage |
· DEVB (W) No. 6/2010 |
N/A |
|
|
S7.5.1 |
WM2 |
Construction and Demolition Material · Maintain temporary stockpiles and reuse excavated fill material for backfilling and reinstatement; · Carry out on-site sorting; · Make provisions in the Contract documents to allow and promote the use of recycled aggregates where appropriate; · Adopt ‘selective demolition’ technique to demolish the existing structures and facilities with a view to recovering broken concrete effectively for recycling purpose, where possible; · Implement a trip-ticket system for each works contract to ensure that the disposal of C&D materials are properly documented and verified; and · Implement an enhanced Waste Management Plan similar to ETWBTC (Works) No. 19/2005 – “Environmental Management on Construction Sites” to encourage on-site sorting of C&D materials and to minimize their generation during the course of construction. |
Good site practice to minimize the waste generation and recycle the C&D materials as far as practicable so as to reduce the amount for final disposal |
Contractor |
All construction sites |
Construction stage |
· Land (Miscellaneous Provisions) Ordinance · Waste Disposal Ordinance · ETWB TCW No. 19/2005 |
Implemented |
|
|
S7.5.1 |
WM3 |
C&D Waste · Standard formwork or pre-fabrication should be used as far as practicable in order to minimize the arising of C&D materials. The use of more durable formwork or plastic facing for the construction works should be considered. Use of wooden hoardings should not be used, as in other projects. Metal hoarding should be used to enhance the possibility of recycling. The purchasing of construction materials will be carefully planned in order to avoid over ordering and wastage; · The Contractor should recycle as much of the C&D materials as possible on-site. Public fill and C&D waste should be segregated and stored in different containers or skips to enhance reuse or recycling of materials and their proper disposal. Where practicable, concrete and masonry can be crushed and used as fill. Steel reinforcement bar can be used by scrap steel mills. Different areas of the sites should be considered for such segregation and storage. |
Good site practice to minimize the waste generation and recycle the C&D materials as far as practicable so as to reduce the amount for final disposal |
Contractor |
All construction sites |
Construction stage |
· Land (Miscellaneous Provisions) Ordinance · Waste Disposal Ordinance · ETWB TCW No. 19/2005 |
Implemented |
|
|
S7.5.1 |
WM4 |
Excavated Contaminated Soils · Details of the mitigation measures on handling of the contaminated soil shall be referred to Section on Land Contamination below. |
The contaminated soil will be excavated for on-site reuse |
Contractor |
PBH4 |
Prior to commencement of construction works within the contaminated area |
· Practice Guide (PG) for Investigation and Remediation of Contaminated Land · GN/GM for land contamination |
Implemented |
|
|
S7.5.1 |
WM5 |
Land-based Sediment · All construction plant and equipment shall be designed and maintained to minimize the risk of silt, sediments, contaminants or other pollutants being released into the water column or deposited in the locations other than designated location; · All vessels shall be sized such that adequate draft is maintained between vessels and the sea bed at all states of the tide to ensure that undue turbidity is not generated by turbulence from vessel movement or propeller wash; · Before moving the vessels which are used for transporting dredged material, excess material shall be cleaned from the decks and exposed fittings of vessels and the excess materials shall never be dumped into the sea except at the approved locations; · Adequate freeboard shall be maintained on barges to ensure that decks are not washed by wave action. · The Contractors shall monitor all vessels transporting material to ensure that no dumping outside the approved location takes place. The Contractor shall keep and produce logs and other records to demonstrate compliance and that journeys are consistent with designated locations and copies of such records shall be submitted to the engineers; · The Contractors shall comply with the conditions in the dumping license. · All bottom dumping vessels (Hopper barges) shall be fitted with tight fittings seals to their bottom openings to prevent leakage of material; · The material shall be placed into the disposal pit by bottom dumping; · Contaminated marine mud shall be transported by spit barge of not less than 750m3 capacity and capable of rapid opening and discharge at the disposal site; · Discharge shall be undertaken rapidly, and the hoppers shall be closed immediately. Material adhering to the sides of the hopper shall not be washed out of the hopper and the hopper shall remain closed until the barge returns to the disposal site. · For Type 3 special disposal treatment, sealing of contaminant with geosynthetic containment before dropping designated mud pit would be a possible arrangement. A geosynthetic containment method is a method whereby the sediments are sealed in geosynthetic containers and, the containers would be dropped into the designated contaminated mud pit where they would be covered by further mud disposal and later by the mud pit capping at the disposal site, thereby fulfilling the requirements for fully confined mud disposal. |
To control pollution due to marine sediment |
Contractor |
Along CKR alignment |
Construction stage |
· ETWB TCW No. 34/2002 |
Implemented |
|
|
S7.5.1 |
WM6 |
Chemical Waste · Chemical waste that is produced, as defined by Schedule 1 of the Waste Disposal (Chemical Waste) (General) Regulation, should be handled in accordance with the Code of Practice on the Packaging, Labelling and Storage of Chemical Wastes; · Containers used for the storage of chemical wastes should be suitable for the substance they are holding, resistant to corrosion, maintained in a good condition, and securely closed, have a capacity of less than 450 L unless the specification has been approved by EPD, and display a label in English and Chinese in accordance with instructions prescribed in Schedule 2 of the regulation; · The storage area for chemical wastes should be clearly labelled and used solely for the storage of chemical waste, enclosed on at least 3 sides, have an impermeable floor and bunding of sufficient capacity to accommodate 110% of the volume of the largest container or 20% of the total volume of waste stored in that area, whichever is the greatest, have adequate ventilation, covered to prevent rainfall entering, and arranged so that incompatible materials are adequately separated; · Disposal of chemical waste should be via a licensed waste collector, be to a facility licensed to receive chemical waste, such as the Chemical Waste Treatment Centre which also offers a chemical waste collection service and can supply the necessary storage containers, or be to a reuser of the waste, under approval from EPD. |
Control the chemical waste and ensure proper storage, handling and disposal |
Contractor |
All construction sites |
Construction stage |
· Waste Disposal (Chemical Waste) (General) Regulation · Code of Practice on the Packaging, Labelling and Storage of Chemical Waste |
Implemented |
|
|
S7.5.1 |
WM7 |
General Refuse · General refuse generated on-site should be stored in enclosed bins or compaction units separately from construction and chemical wastes; · A reputable waste collector should be employed by the Contractor to remove general refuse from the site, separately from construction and chemical wastes, on a daily basis to minimize odour, pest and litter impacts. Burning of refuse on construction sites is prohibited by law. · Aluminum cans are often recovered from the waste stream by individual collectors if they are segregated and made easily accessible. Separate labelled bins for their deposit should be provided if feasible; · Office wastes can be reduced through the recycling of paper if volumes are large enough to warrant collection. Participation in a local collection scheme should be considered by the Contractor. |
Minimize production of the general refuse and avoid odour, pest and litter impacts |
Contractor |
All construction sites |
Construction stage |
· Waste Disposal Ordinance |
Implemented after reminder |
|
|
Land Contamination |
|||||||||
|
S8.9 & Appendix 8.4 |
LC2 |
Excavation of the Contaminated Soil · Prior to commencement of the excavation works at the contamination zone, the zone should be clearly marked out on site and the surface levels recorded. Excavation of contaminated material should be undertaken using dedicated earth-moving plant. · The excavated contaminated soils would be stockpiled at designated area on site and covered by sheet to prevent dispersion of contamination during stockpiling. · The Contractor should pay attention to the selection of suitable groundwater lowering schemes and discharge points if the groundwater table is higher than the contaminated soils during excavation. The Contractor should also obtain a valid Water Pollution Control Ordinance (WPCO) discharge licence from EPD where applicable. |
The contaminated soil will be excavated for on-site reuse |
Contractor |
PBH4 |
Prior to commencement of construction works within the contaminated area |
· Practice Guide (PG) for Investigation and Remediation of Contaminated Land · Guidance Notes for Contaminated Land Assessment and Remediation · Guidance Manual for Use of Risk-Based Remediation Goals (RBRGs) for Contaminated Land Management |
N/A |
|
|
S8.9 & Appendix 8.4 |
LC3 |
· Following completion of the excavation to the specified depth, at least one sample from the base of the excavation and four samples evenly distributed along the boundary of the excavation shall be taken for a closure assessment testing. The acceptance criterion is shown below:
· If the results of analysis below the RBRGs (Public Park), no further excavation will be required. If the analysis indicates presence of contamination (i.e. noncompliance of the acceptance criteria), further excavation shall be carried out in 0.5m increment vertically and/or horizontally depending on the location(s) of the sample(s) which has exceeded the acceptance criteria. Further sampling shall also be conducted for compliance testing. The process of excavation, sampling and compliance testing should continue until all contaminated materials are removed and should be supervised by a Land Contamination Specialist. |
N/A |
||||||
|
Appendix 8.4 |
LC4 |
A Remediation Report (RR) to demonstrate adequate clean-up shall be prepared and submitted to EPD for endorsement prior to the commencement of any construction/development works within the sites. No construction/development works shall be carried out prior to the endorsement of the RR by EPD. |
N/A |
||||||
|
Hazard to Life |
|||||||||
|
H8 |
The driver and his assistant should be physically healthy, experienced and have good safe driving records. The driver should hold a proper driving licence for the approved transport truck. Dedicated training programme and regular road safety briefing sessions/ workshops should be provided to enhance their safe driving attitude and practice. Smoking should be strictly prohibited. |
To reduce the risk during explosives transport |
Contractor |
Works areas at which explosives would be used |
Construction stage |
- |
N/A |
||
|
S9.18 |
H9 |
Emergency response plans in case of road accident should be prepared and implemented. The driver and his assistant should be familiar with the emergency procedures including evacuation, and proper communication/ fire-fighting equipment should be provided to the driver and his assistant. |
To reduce the risk during explosives transport |
Contractor |
Works areas at which explosives would be used |
Construction stage |
- |
N/A |
|
|
Landscape & Visual |
|||||||||
|
S10.10.1 Table 10.11 |
LV3 |
Good Site Management · Large temporary stockpiles of excavated material shall be covered with unobtrusive sheeting to prevent dust and dirt spreading to adjacent landscape areas and vegetation, and to create a neat and tidy visual appearance. · Construction plant and building material shall be orderly and carefully stored in order to create a neat and tidy visual appearance. |
Minimize visual impact |
Contractor |
Within Project site |
Construction stage |
- |
Implemented |
|
|
LV4 |
Screen Hoarding · Decorative screen hoarding should be erected to screen the public from the construction area. It should be designed to be compatible with the existing urban context. |
Minimize visual impact |
Contractor |
Within Project site |
Construction stage |
- |
Implemented |
||
|
S10.10.1 Table 10.11 |
LV5 |
Lighting Control during Construction · All lighting in the construction site shall be carefully controlled to minimize light pollution and night-time glare to nearby residencies and GIC. The Contractor shall consider other security measures, which shall minimize the visual impacts. |
Minimize visual impact |
Contractor |
Within Project site |
Construction stage |
- |
Implemented |
|
|
S10.10.1 Table 10.11 |
LV6 |
Erosion Control · The potential for soil erosion shall be reduced by minimizing the extent of vegetation disturbance on site and by providing a protective cover over newly exposed soil. |
Minimize landscape impact |
Contractor |
Within Project site |
Construction stage |
- |
Implemented |
|
|
S10.10.1 Table 10.11 |
LV7 |
Tree Protection & Preservation · Carefully protected during construction. Tree protection measures will be detailed at the Tree Removal Application stage and plans submitted to the relevant Government Department for approval in due course in accordance with ETWB TC no. 3/2006. |
Minimize landscape and visual impact |
Contractor |
Within Project site |
Construction stage |
· ‘Guidelines for Tree Risk Management and Assessment Arrangement on an Area Basis and on a Tree Basis’, Greening, Landscape and Tree Management (GLTM) Section, DEVB · Latest recommended horticultural practices from GLTM Section, DEVB |
Implemented |
|
|
S10.10.1 Table 10.11 |
LV8 |
Tree Transplantation · For trees unavoidably affected by the Project that have to be removed, where practical transplantation will be chosen as the top priority method of removal. If this is not possible or practical compensatory planting will be provided for trees unavoidably felled (See LV10). For trees unavoidably affected by the Project works that are transplanted, transplantation must be carried out in accordance with ETWB TCW 2/2004 and 3/2006. |
Minimize landscape and visual impact |
Contractor |
Within Project site and designated off-site locations |
Prior to Construction stage |
· ETWB TCW 3/2006 · Latest recommended horticultural practices from Greening, Landscape and Tree Management (GLTM) Section, DEVB · ETWB TCW 2/2004 |
N/A |
|
|
S10.10.1 Table 10.11 |
LV9 |
Compensatory Planting · For trees unavoidably affected by the Project that have to be removed, where practical transportation will be chosen as the top priority method of removal but if this is not possible or practical compensatory planting will be provided for trees unavoidably felled. All felled trees shall be compensated for by planting trees to the satisfaction of relevant Government projects. Required numbers and locations of compensatory trees shall be determined and agreed separately with Government during the Tree Felling Application process under ETWBTC 3/2006. · Compensatory tree planting may be incorporated into public open spaces and along roadside amenity areas affected by the construction works and therefore be part of the bigger wider planting plans. Onsite compensation planting is preferred but if necessary, additional receptor sites outside the Works Area shall be agreed separately with Government during the Tree Felling Application process. |
Minimize visual impact and also enhance landscape |
Contractor |
Within Project site |
Construction stage |
· ETWB TCW 3/2006 · Latest recommended horticultural practices from Greening, Landscape and Tree Management (GLTM) Section, DEVB · ETWB TCW 2/2004 |
N/A |
|
|
S10.10.1 Table 10.11 |
LV10 |
Screen Planting · Tall screen/buffer trees, shrubs and climbers should be planted, in so far as is possible, to soften and screen proposed structures such as roads and central strip, vertical edges and buildings and to enhance streetscape greening effect where appropriate. Indiscriminate use of trees for screening must be avoided and the principle of ‘right tree for the right place’ must be followed. This detail will be provided at the Detailed Design stage. This measure may additionally form part of the compensatory planting and will improve and create a pleasant pedestrian environment. |
Minimize visual impact and also enhance landscape. |
Contractor |
Within Project Site |
Construction Phase |
· Guidelines on Greening of Noise Barriers, issued April 2012, GLTMS, DevB · ETWB TCW 2/2004 |
N/A |
|
|
S10.10.1 Table 10.11 |
LV12 |
Reinstatement · All works areas, excavated areas and disturbed areas for tunnel construction and temporary road diversion or any other proposed works shall be reinstated to former conditions or better, with reasonable landscape treatment and to the satisfaction of the relevant Government departments. (Specific mitigation for disturbance to public open space is detailed separately under LV14) |
Minimize landscape impact |
Contractor |
Within Project Site |
Construction Phase |
· N/A |
N/A |
|
|
Cultural Heritage Impact (Construction Phase) |
|||||||||
|
S11.4.4 |
CH1 |
The contractor should be alerted during the construction on the possibility of locating archaeological remains and as a precautionary measure, AMO shall be informed immediately in case of discovery of antiquities or supposed antiquities in the subject sites. |
To preserve any cultural heritage items which may be removed and damaged by the excavation |
Contractor |
During construction works for cut and cover tunnels |
Construction stage |
· AMOs requirements |
Implemented |
|
|
EM&A Project |
|||||||||
|
S13.2 |
EM1 |
An Independent Environmental Checker needs to be employed as per the EM&A Manual |
Control EM&A Performance |
Highways Department |
All construction sites |
Construction stage |
· EIAO Guidance Note No. 4/2010 · TM-EIAO |
Implemented |
|
|
S13.2-13.4 |
EM2 |
· An Environmental Team needs to be employed as per the EM&A Manual; · Prepare a systematic Environmental Management Plan to ensure effective implementation of the mitigation measures; · An environmental impact monitoring needs to be implemented by the Environmental Team to ensure all the requirements given in the EM&A Manual are fully complied with. |
Perform environmental monitoring & auditing |
Highways Department/ Contractor |
All construction sites |
Construction stage |
· EIAO Guidance Note No. 4/2010 · TM-EIAO |
Implemented |
|
Appendix G
Monitoring Schedule of the Reporting Month
![]()
Appendix H
Calibration Certificates
(Air Monitoring)




Appendix I
The Certification of Laboratory with HOKLAS Accredited Analytical Tests

Appendix J
Location Plan of Air Quality Monitoring Station

Appendix K
Monitoring Data (Air Monitoring)
Location: |
Fire Services Department Kowloon Bay Workshop (E-A1a) |
|
Monitoring date: |
4, 7, 13, 19 and 25 February 2025 |
|
Parameter: |
1-hour TSP |
|
Other Factors: |
Nearby traffic |
|
Date |
1-hour TSP (μg/m3) |
||||
|
Weather |
Start Time |
1st hour (μg/m3) |
2nd hour (μg/m3) |
3rd hour (μg/m3) |
|
|
3/2/2025 |
Fine |
14:00 |
56 |
52 |
58 |
|
7/2/2025 |
Fine |
13:26 |
49 |
50 |
46 |
|
13/2/2025 |
Fine |
13:30 |
53 |
57 |
57 |
|
19/2/2025 |
Fine |
12:58 |
48 |
43 |
51 |
|
25/2/2025 |
Fine |
14:05 |
56 |
53 |
50 |
Figure
1: Graphical Illustration of Measured 1-hour TSP (μg/m3) Levels
at E-A1 and E-A1a

|
Location: |
Fire Services Department Kowloon Bay Workshop (E-A1a) |
|
Monitoring date: |
4, 7, 13, 19 and 25 February 2025 |
|
Parameter: |
24-hour TSP |
|
Other Factors: |
Nearby traffic |

Figure 2: Graphical Illustration of Measured
24-hour TSP (μg/m3) Levels at E-A1 and E-A1a

WIND DIRECTION DATA
FOR 4, 5, 7, 8, 13, 14, 19, 20, 25 and 26 February 2025










WIND
SPEED DATA FOR 4, 5, 7, 8, 13, 14, 19, 20, 25 and 26 February 2025










Appendix L
Waste Flow Table

Appendix M
Statistics on Complaint,
Notifications of Summons and Successful Prosecutions
Statistical
Summary of Exceedances
|
Air Quality |
|||
|
Location |
Action Level |
Limit Level |
Total |
|
E-A1a |
0 |
0 |
0 |
Statistical
Summary of Environmental Complaints
|
Reporting Period |
Environmental Complaint Statistics |
||
|
Frequency |
Cumulative |
Complaint Nature |
|
|
1 February 2025 - 28 February 2025 |
0 |
3 |
N/A |
Statistical
Summary of Environmental Non-compliance
|
Reporting Period |
Environmental Non-compliance Statistics |
||
|
Frequency |
Cumulative |
Details |
|
|
1 February 2025 - 28 February 2025 |
0 |
0 |
N/A |
Statistical
Summary of Environmental Summons
|
Reporting Period |
Environmental Summons Statistics |
||
|
Frequency |
Cumulative |
Details |
|
|
1 February 2025 - 28 February 2025 |
0 |
0 |
N/A |
Statistical
Summary of Environmental Prosecution
|
Reporting Period |
Environmental Prosecution Statistics |
||
|
Frequency |
Cumulative |
Details |
|
|
1 February 2025 - 28 February 2025 |
0 |
0 |
N/A |
Appendix N
Monitoring Schedule of the
Coming Month




TABLE OF
CONTENTS
Construction Activities
undertaken during the Reporting Month
Statues of Environmental
Licensing and Permitting
Implementation Status of
Environmental Mitigation Measures
Implementation Status of
Event and Action Plans
Summary of Complaint,
Warning, Notification of any Summons and Successful Prosecution
Status of Required
Submission under Environmental Permit
8 Conclusions
and recommendations
lIST OF TABLES
Table I.......... Summary of Complaint/Summons/Prosecution in the
Reporting Month
Table 1.1........ Key Project Contacts
Table 1.2........ Summary of Environmental Licensing and Permit Status
Table 4.1........ Quantities of Waste Generated from the Project
Table 6.1........ Observations and Recommendations of Site Inspections
Table 6.2........ Status of Required Submission under Environmental
Permit
lIST OF FIGUREs
Figure
1.1 Site
Layout Plan
Figure
1.2 Project
Organisation for Environmental Monitoring and Audit
lIST OF APPENDIces
Appendix A Construction
Programme
Appendix B Summary of Waste
Generation and Disposal Records
Appendix C Environmental
Mitigation Implementation Schedule (EMIS)
Appendix
D Summaries of Environmental Complaint, Warning, Summon and
Notification of Successful Prosecution
Introduction
Environmental
Monitoring Works
Complaint
Handling, Prosecution and Public Engagement
5.
Summary of
complaint/summons/prosecution in the reporting month is tabulated in
Table I.
|
Event |
Event Details |
Follow-up/ Remedial Actions |
Status/ Remarks |
||
|
Number |
Brief Description |
||||
|
Complaints Received |
0 |
- |
- |
- |
|
|
Notification of Summons and Prosecutions Received |
0 |
- |
- |
- |
|
Reporting
Changes
Future
Key Issues
|
Party |
Role |
Contact Person |
Phone No. |
|
AMMJV |
Engineer Representative |
Mr. Tommy Wong |
3695 0419 |
|
Cinotech |
Environmental Team |
Ms. Betty Choi |
2151 2072 |
|
ERM |
Independent Environmental Checker |
Ms. Mandy To |
2271 3113 |
|
GCL |
Contractor |
Mr. William Chan |
5408 3045 |
|
Permit / License No. |
Valid Period |
Status |
|
|
From |
To |
||
|
Environmental Permit (EP) |
|||
|
EP-457/2013/D |
15 Jun 2021 |
N/A |
Valid |
|
Notification of Construction Works under Air Pollution Control Ordinance (APCO) |
|||
|
457346 |
19 Jun 2020 |
End of Project |
Valid |
|
Billing Account for Construction Waste Disposal |
|||
|
7037679 |
26 Jun 2020 |
N/A |
Valid |
|
Registration of Chemical Waste Producer – Kai Tak |
|||
|
5211-286-G2347-54 |
15 Jul 2020 |
N/A |
Valid |
|
Wastewater Discharge Licence - Kai Tak |
|||
|
WT00037178-2020 |
18 Dec 2020 |
31 Dec 2025 |
Valid |
|
Wastewater Discharge Licence at Kai Tak Site office |
|||
|
WT00041796-2022 |
20 Sep 2022 |
30 Sep 2027 |
Valid |
|
Construction Noise Permit - Kai Tak Site |
|||
|
GW-RE1569-24 |
11 Dec 2024 |
31 Mar 2025 |
Valid |
|
Construction Noise Permit for Works at 2nd office |
|||
|
GW-RE1066-24 |
2 Sep 2024 |
1 Mar 2025 |
Valid |
|
Quantity |
|||||||
|
|
Inert C&D Materials |
Non-inert C&D Materials |
|||||
|
Reporting Period |
Total Quantity Generated (in '000m3) |
Disposed as Public Fill (in '000m3) |
Others, e.g. general refuse (in '000m3) |
Metals (in '000kg) |
Paper/cardboard Packaging (in '000kg) |
Plastics (in '000kg) |
Chemical waste (in '000kg) |
|
Feb 2025 |
0.016 |
0.016 |
0.753 |
0 |
0 |
0 |
0 |
|
Parameters |
Date |
Observations |
Follow-up Actions |
|
Water Quality |
N/A |
No environmental deficiency was identified in the reporting period. |
N/A |
|
Air Quality |
18 Feb 2025 |
Stock of more than 20 bags of cement should be covered. |
Stock of cement has been covered. |
|
Noise |
N/A |
No environmental deficiency was identified in the reporting period. |
N/A |
|
Waste / Chemical Management |
25 Feb 2025 |
General refuse should be disposed of properly. |
General refuse has been removed. |
|
Land Contamination |
N/A |
No environmental deficiency was identified in the reporting period. |
N/A |
|
Landscape and Visual |
N/A |
No environmental deficiency was identified in the reporting period. |
N/A |
|
Permits /Licences |
N/A |
No environmental deficiency was identified in the reporting period. |
N/A |
|
EP Condition (EP-457/2013/D) |
Submission |
Submission Date |
|
Condition 3.4 |
Monthly EM&A Report (January 2025) |
12 February 2025 |
Figure 1.1
Site Layout Plan

Figure 1.2
Project Organisation for Environmental Monitoring and Audit

Appendix A
Construction Programme

Appendix B
Summary of Waste Generation and Disposal Records

Appendix C
Environmental Mitigation Implementation Schedule (EMIS)

















Appendix D
Summaries of Environmental Complaint, Summon and Notification of
Successful Prosecution
